menü

Super freundliche helle AltbauWohnung (Gemeinschaftsterrasse)

1160 Wien,Ottakring, Wohnung zum Kauf

Kontaktdaten

Mirela WÖHNHART-KRISTO, Mirela Kristo Immobilientreuhand GmbH
  • Name
    Frau Mirela WÖHNHART-KRISTO
  • Position
    Akad. Immobilienberaterin und Liegenschaftsmanagerin, SV-Anwärterin (allgemein beeideter Sachverständiger Österreich)
  • Firma
    Mirela Kristo Immobilientreuhand GmbH
  • Anschrift
    Lindengasse 39 
    1070 Wien
  • zum Kontaktformular

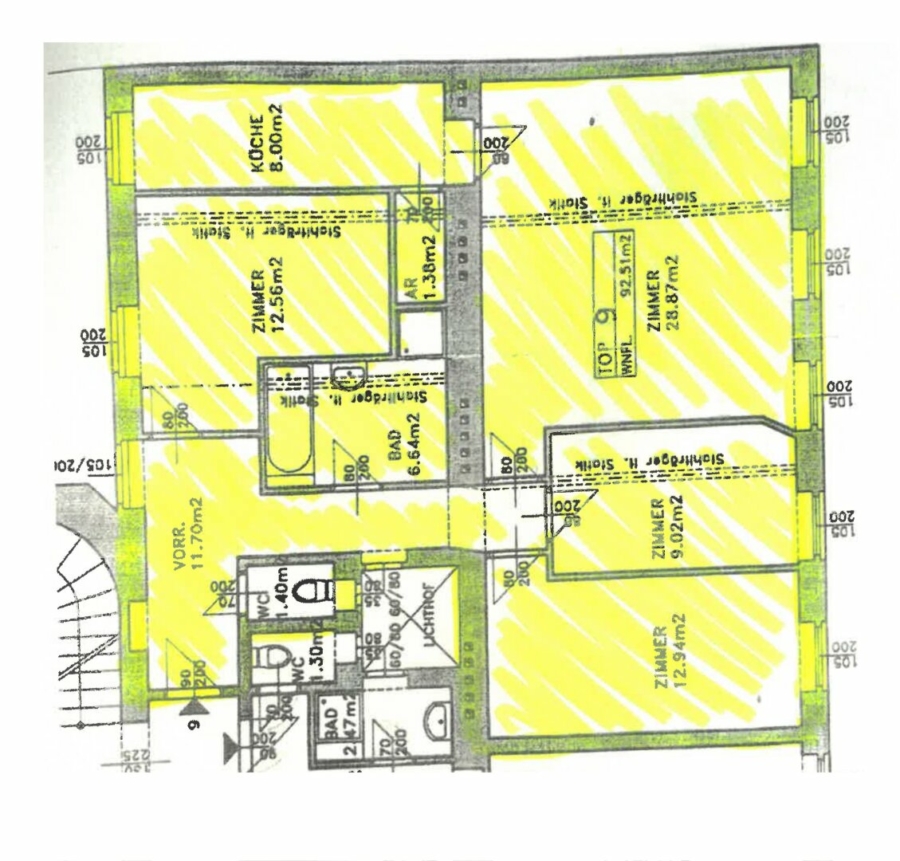
Objektdaten

  • Objekt-ID
    7211
  • Objekttyp
    Wohnung
  • Adresse
    Wurlitzergasse
    1160 Wien,Ottakring
    (Wattgasse)
    Wien
  • Etage
    2
  • Wohnfläche ca.
    93 m²
  • Zimmer
    4
  • Badezimmer
    1
  • Separate WC
    1
  • Küche
    Einbauküche
  • Heizungsart
    Etagenheizung
  • Wesentlicher Energieträger
    Gas
  • Baujahr
    1905
  • Zustand
    gepflegt
  • Bauweise
    Massiv
  • Heizwärmebedarf (HWB)
    123,40 kWh/(m²·a) (Klasse D)
  • Käufer­provision
    3 % des Kaufpreises zzgl. 20 % USt.
  • Monatliche Kosten netto
    199,15 EUR
  • Monatliche Kosten MwSt.
    15,39 EUR
  • Monatliche Kosten brutto
    214,54 EUR
  • Sonstige Kosten netto
    45,23 EUR
  • Kaufpreis
    388.740 EUR
  • Betriebskosten netto
    153,92 EUR
  • Betriebskosten MwSt.
    15,39 EUR

Ausstattung / Merkmale

  • ✓ Abstellraum
  • ✓ Altbau
  • ✓ Dusche
  • ✓ Einbauküche
  • ✓ Fertigparkettboden
  • ✓ Fliesenboden
  • ✓ Kabel-/Sat-TV
  • ✓ Klimatisiert
  • ✓ Massivbauweise
  • ✓ Personenaufzug
  • ✓ Separates WC

Energieausweis

HWB SK 123,40 A++ A+ A B C D E F G D

Objekt­beschreibung

Eckdaten und Raumaufteilung:

  • Wohnfläche ca. 93 m²
  • geräumiges Vorzimmer
  • 3 Schlaf-/Kinder-/Arbeitszimmer
  • Zimmer sind zentral begehbar
  • großes Wohnzimmer mit genügend Platz für Esstisch
  • Küchenbereich angrenzend und voll ausgestattet
  • Abstellraum/Speis
  • Badezimmer mit Dusche, Waschmaschinenanschluss und Waschbecken
  • Toilette mit Waschbecken und Fenster
  • Fertigparkettboden
  • Kunststofffenster
  • Gasetagenheizung
  • Klimaanlage
  • GEMEINSCHAFTSDACHTERRASSE
  • 2. Stock
  • Lift ist vorhanden
  • Kellerabteil vorhanden
  • ab sofort verfügbar
  • Ausrichtung Westen

Infrastruktur:

  • Wattgasse/Hernalser Hauptstraße direkt ums Eck
  • ausgezeichnete Lage
  • Geschäfte des täglichen Bedarfs in Gehweite
  • Straßenbahn 2/9/43 und Autobus 10A zu Fuß erreichbar

Konditionen:

  • Kaufpreis € 388.740,00
  • Grunderwerbssteuer 3,5 %
  • grundbücherliche Eintragung 1,1 %
  • Kosten für Anwalt Mag. Tobias Rieß MSc.
  • Provision 3 % (von KP) zzgl. Steuer

WICHTIG: es werden NUR Anfragen mit vollständig ausgefüllten KontaktDaten bearbeitet

Für weitere Fragen stehen wir Ihnen jeder Zeit gerne zur Verfügung. Wir möchten Sie darauf hinweisen, dass die Firma Mirela Kristo Immobilientreuhand GmbH in einem wirtschaftlichen/familiären Naheverhältnis zum Vermieter/Eigentümer steht und gegebenenfalls auch als Doppelmakler tätig ist.

Auf unserer Website finden Sie weitere ImmobilienAngebote – http://www.mirela-kristo.at

Bei Interesse kontaktieren Sie bitte

Frau WÖHNHART-KRISTO

office@mirela-kristo.at

Maklervereinbarung: Wir ersuchen um Verständnis, dass wir bei Anfragen zur Objektadresse, bzw. Besichtigungstermin aufgrund neuer gesetzlicher Bestimmungen Unterlagen erst dann zusenden können, wenn Sie vorab bestätigen, dass Sie unser sofortiges Tätigwerden wünschen und über Ihre Rücktrittsrechte aufgeklärt wurden. Sie bekommen nach Ihrer schriftlichen Anfrage mit vollständiger Angabe des Namens, Anschrift und Telefonnummer ein Email, in dem Sie diese Punkte bestätigen müssen.

Konditionen: Da es sich um ein Maklerangebot handelt, gelten die Bedingungen der Landesinnung für Immobilien- und Vermögenstreuhänder. Ein entsprechendes Informationsblatt wird dem Exposé beigelegt. Nebenkosten/Kauf: Grunderwerbssteuer 3,5 %, Grundbuchseintrag 1,1 %, Maklergebühren:3 % +20 % MwSt.

Nebenkosten/Miete: 2Bruttomonatsmieten bei Wohnimmobilien (Bestellerprinzip), 3 Bruttomonatsmieten bei Gewerbeimmobilien, jeweils + 20 % MwSt.

Haftungsausschluss: Wir weisen darauf hin, dass sämtliche Daten im vorliegenden Angebot sowie die von unserem Büro an Sie weitergegebenen Auskünfte, vom Verkäufer der zu vermittelnden Liegenschaft zur Verfügung gestellt wurden. Ebenso sind Informationen von Dritten (z.B. behördliche Informationen) eingeholt worden, auch für diese können wir unsererseits keinerlei Haftung für deren uneingeschränkte Richtigkeit übernehmen.

Infrastruktur / Entfernungen

Gesundheit
Arzt <500 m Apotheke <250 m Klinik <1.000 m Krankenhaus <1.000 m Kinder & Schulen
Schule <250 m Kindergarten <250 m Universität <1.750 m Höhere Schule <1.250 m Nahversorgung
Supermarkt <250 m Bäckerei <500 m Einkaufszentrum <1.000 m Sonstige
Geldautomat <250 m Bank <250 m Post <250 m Polizei <750 m Verkehr
Bus <250 m U-Bahn <500 m Straßenbahn <500 m Bahnhof <750 m Autobahnanschluss <4.000 m Angaben Entfernung Luftlinie / Quelle: OpenStreetMap

Lage

Direktanfrage

* Pflichtangaben
 SSL-verschlüsselt
Immobiliendaten-Import und Darstellung für WordPress: WP-ImmoMakler

Mirela Kristo Immobilientreuhand GmbH
Lindengasse 39 / Top 6
1070 Wien
T: +43 664 306 79 79
E: office@mirela-kristo.at